CARICAMENTO...

Rustico/Casale a Isolabella - 59.000 euro

Agenzia di Poirino - Via Indipendenza, 50 - Telefono: 0119453375 - Email: poirino@metrocase.it

Cascinale piemontese

Via Della Chiesa

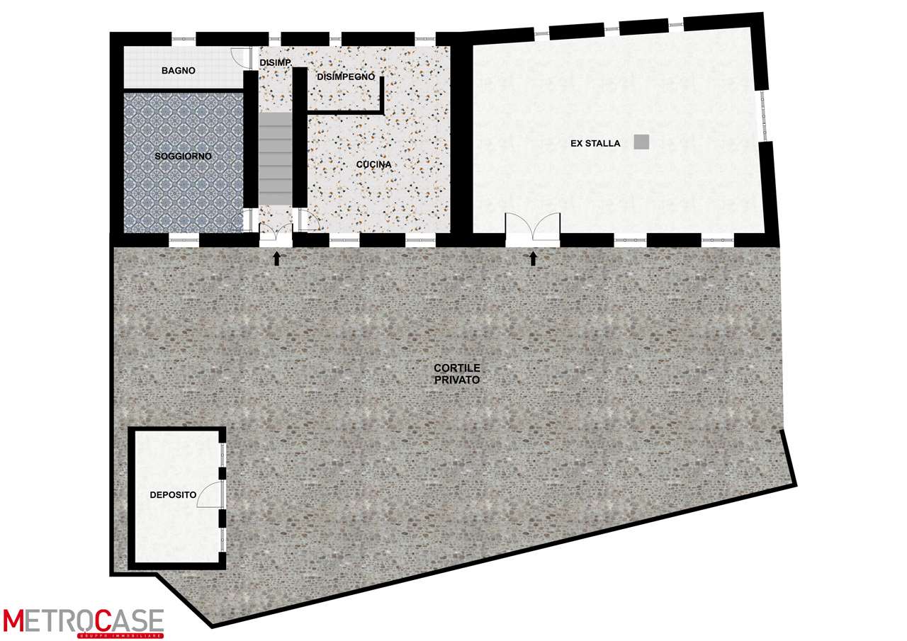
In zona tranquilla, circondata dal verde dei campi di mais, ma a soli cinque chilometri da Poirino e un quarto d’ora di macchina dai centri di Santena e Villanova. Non lontano dalla piazza centrale del paese, proponiamo in vendita cascinale piemontese tradizionale completamente da ristrutturare, libero su tre lati e dotato di cortile privato di circa 230. La proposta è composta da un fabbricato abitativo di oltre 130 mq distribuiti fra piano terra e primo piano (esclusa la buona metratura del piano sottotetto), un adiacente fabbricato originariamente adibito a stalla con sovrastante fienile, che si sviluppa su una superficie di circa 154 mq, ed un deposito storicamente sfruttato come pollaio, situato nel cortile. L’immobile si trova allo stato originale e, pur necessitando di importanti lavori di ristrutturazione, vanta un ottimo potenziale, che potrebbe essere esaltato con un sapiente progetto di recupero e restauro dei particolari costruttivi originari, magari sfruttando le detrazioni fiscali in corso. Soluzione perfetta per chi ricerca buona indipendenza, in contesto tranquillo e a contatto con la natura. Classe energetica G, Ipe 455,75 Epgl Kwh/mq anno.

Informazioni principali

  • Codice annuncio: 26
  • Classe: G (455.75)
  • Locali: 5
  • Prezzo: € 59.000

Dettagli

  • Dimensione: 130 mq
  • Bagni: 1
  • Camere: 0
  • Box/Posti auto: 0

Caratteristiche

  • Stato Immobile: Da Ristrutturare
  • Posizione: Campagna
  • Lati Liberi: 3
  • Arredi: Non Arredato
  • Tipo Cucina: Abitabile
  • Infissi: Legno

 

  • Giardino: Cortile
  • Tipo Soggiorno: Soggiorno
  • Tipo Impianto: Radiatori
  • Serramenti: Da Sostituire

Video

Mappa

Virtual tour

Richiedi informazioni

Compila i campi sottostanti per richiedere informazioni su questo immobile.